ABITAZIONE CORTONA LOC. FRATTA SANTA CATERINA

  • €189.000/trattabili
Caratteristiche In vendita
Località Fratta, 162, Cortona, AR, Italia
Caratteristiche In vendita
ABITAZIONE CORTONA LOC. FRATTA SANTA CATERINA
Località Fratta, 162, Cortona, AR, Italia
  • €189.000/trattabili

Descrizione

Cortona, zona campagna, in Loc. Fratta Santa Caterina, proponiamo in vendita abitazione libera su 3 lati e sviluppata su due livelli.

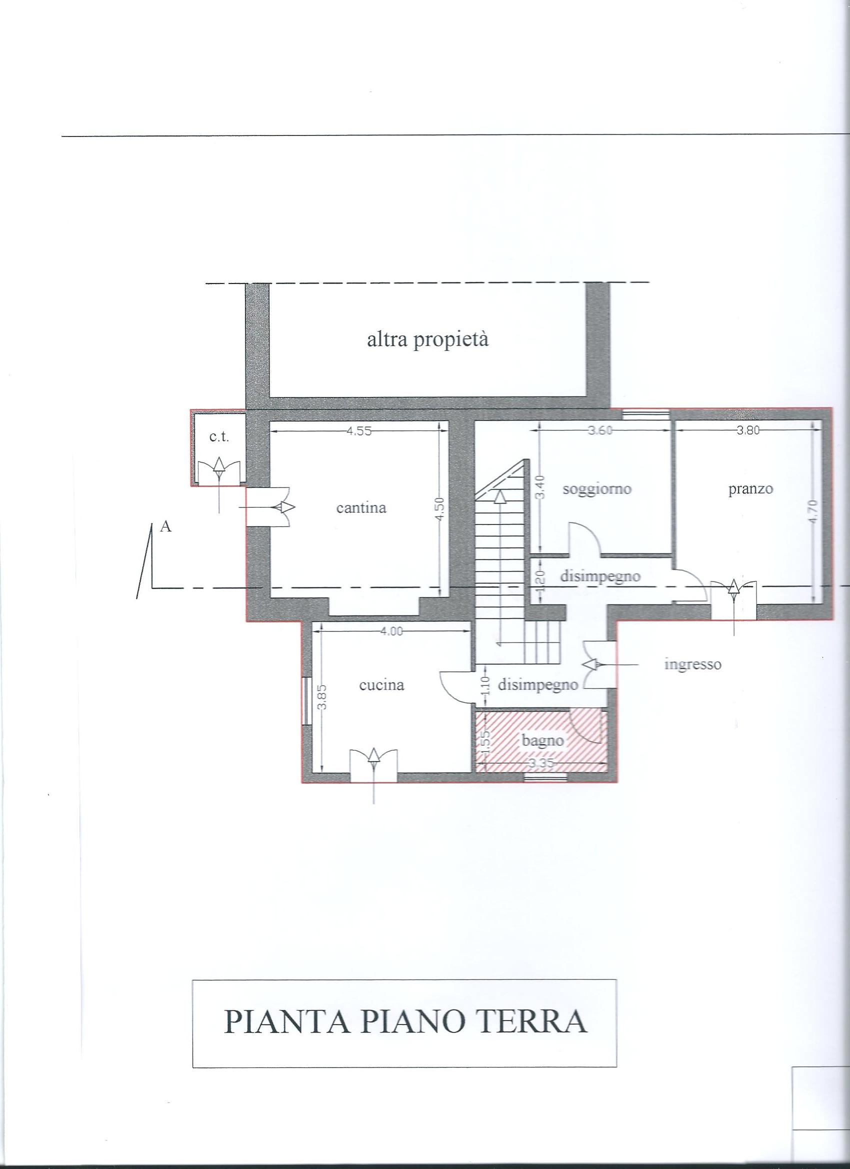
A piano terra di ingresso, cucina, soggiorno, camera, disimpegno, bagno, cantina/garage e centrale termica; al primo piano 4 camere, studio, disimpegno, bagno e ampio terrazzo. Possibilità di ricavare n.2 appartamenti indipendenti.

All’esterno resede privata piastrellata, posto auto e giardino.

L’immobile e’ in buono stato e perfettamente abitabile.

Zona verde e tranquilla a 10 minuti da Cortona e dalla frazione di Camucia.

Dettagli

Aggiornato il Aprile 22, 2026 at 7:18 pm
  • ID Immobile: AV 1512
  • Prezzo: €189.000/trattabili
  • Metratura: 220 m²
  • Terreno: 300 m²
  • Camere: 4
  • Stanze: 9
  • Bagni: 2
  • Tipo di immobile: Abitazione Indipendente
  • Tipo di contratto: In vendita
  • Parcheggio: Piazzale esterno
  • Riscaldamento: Autonomo a Metano

Planimetrie

image

Descrizione:
Planimetria piano terra

image

Descrizione:
Planimetria piano primo

  • Indirizzo Località Fratta, 162, Cortona, AR, Italia
  • Città Cortona
  • Ragione Toscana
  • CAP 52044
  • Località Fratta Santa Caterina
  • Nazione Italia

Confronta Strutture

Confronta
Angela Tamburini
  • Angela Tamburini